ВЕРТИКАЛЬ
Проектно-строительная компания
Проекты
Компания
Услуги
Контакты
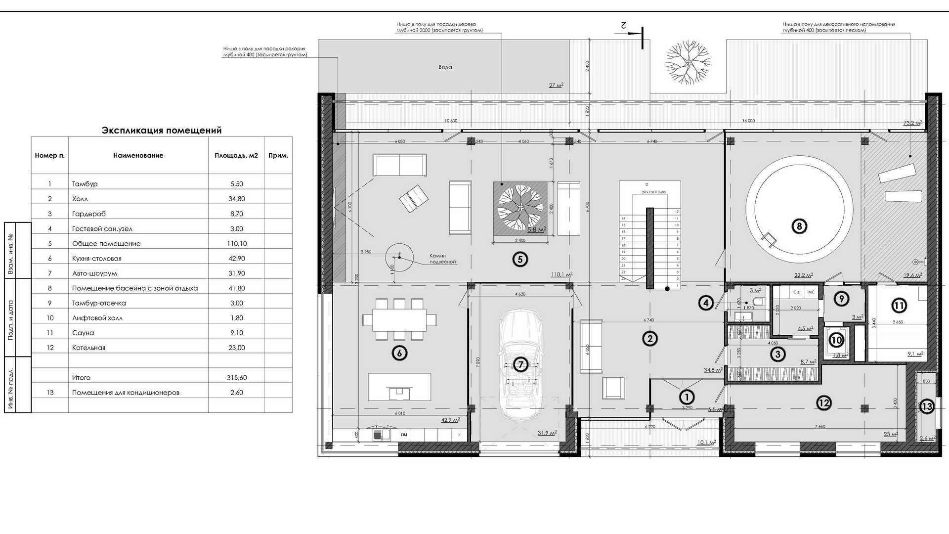
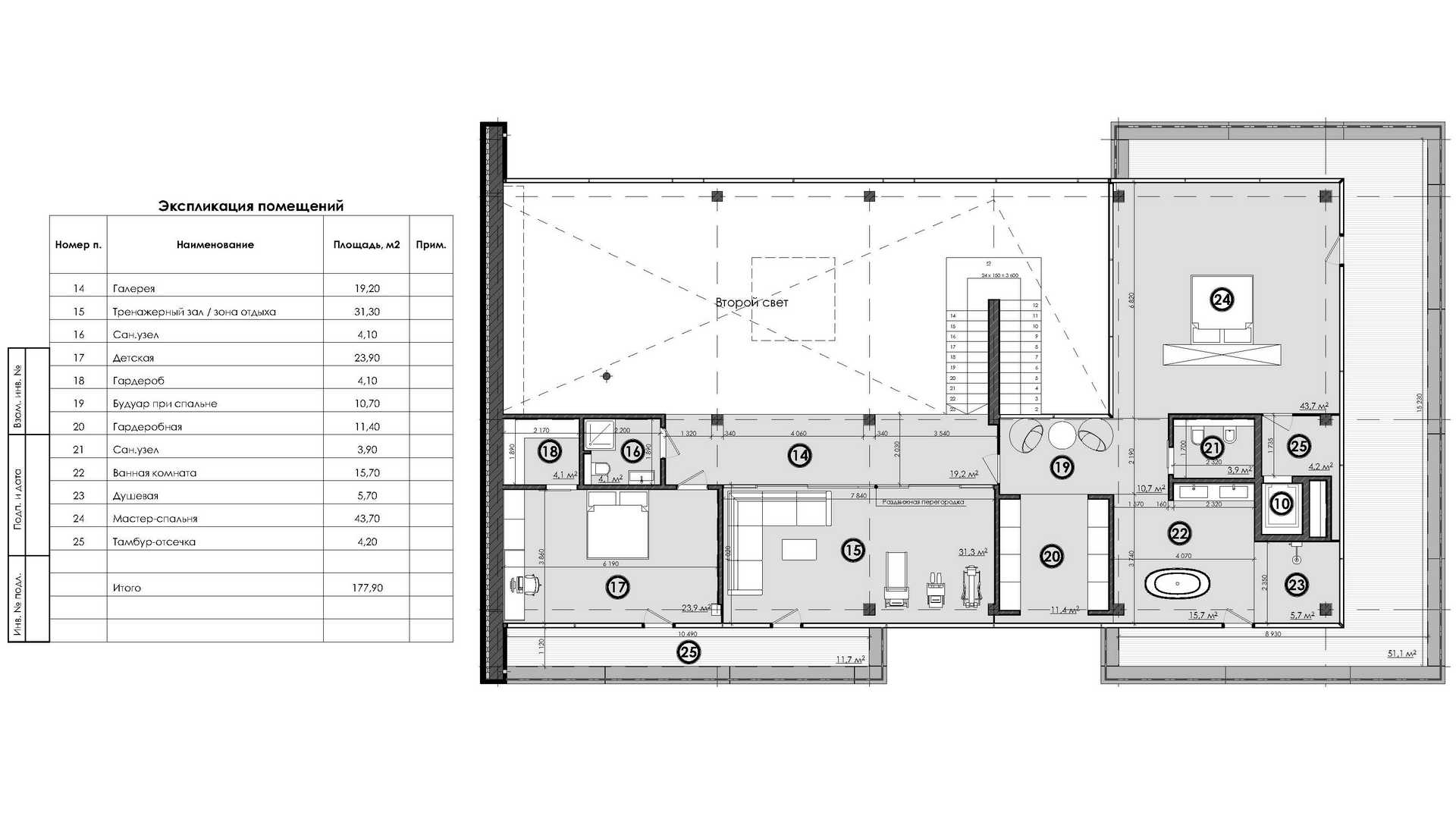
Проект №29-14-2
496 м²
Двухэтажный жилой дом с гаражом, двумя террасами, сауной и бассейном.
Назад
Вперед
Техническое описание
Площадь
496 м²
Размеры
27,88 × 18,63 м
Этажность
2
Высота 1 этажа
3,3 м
Высота 2 этажа
3,3 м
Фундамент
Монолитная фундаментная плита
Фасад
Вентилируемый навесной фасад: фасадные бетонные панели FibreC
Перекрытия
Монолитное железобетонное
Кровля
Плоская с организованным водостоком
Планировка
Вертикаль
Проекты
Индивидуальное жилищное строительство
Проект №29-14-2