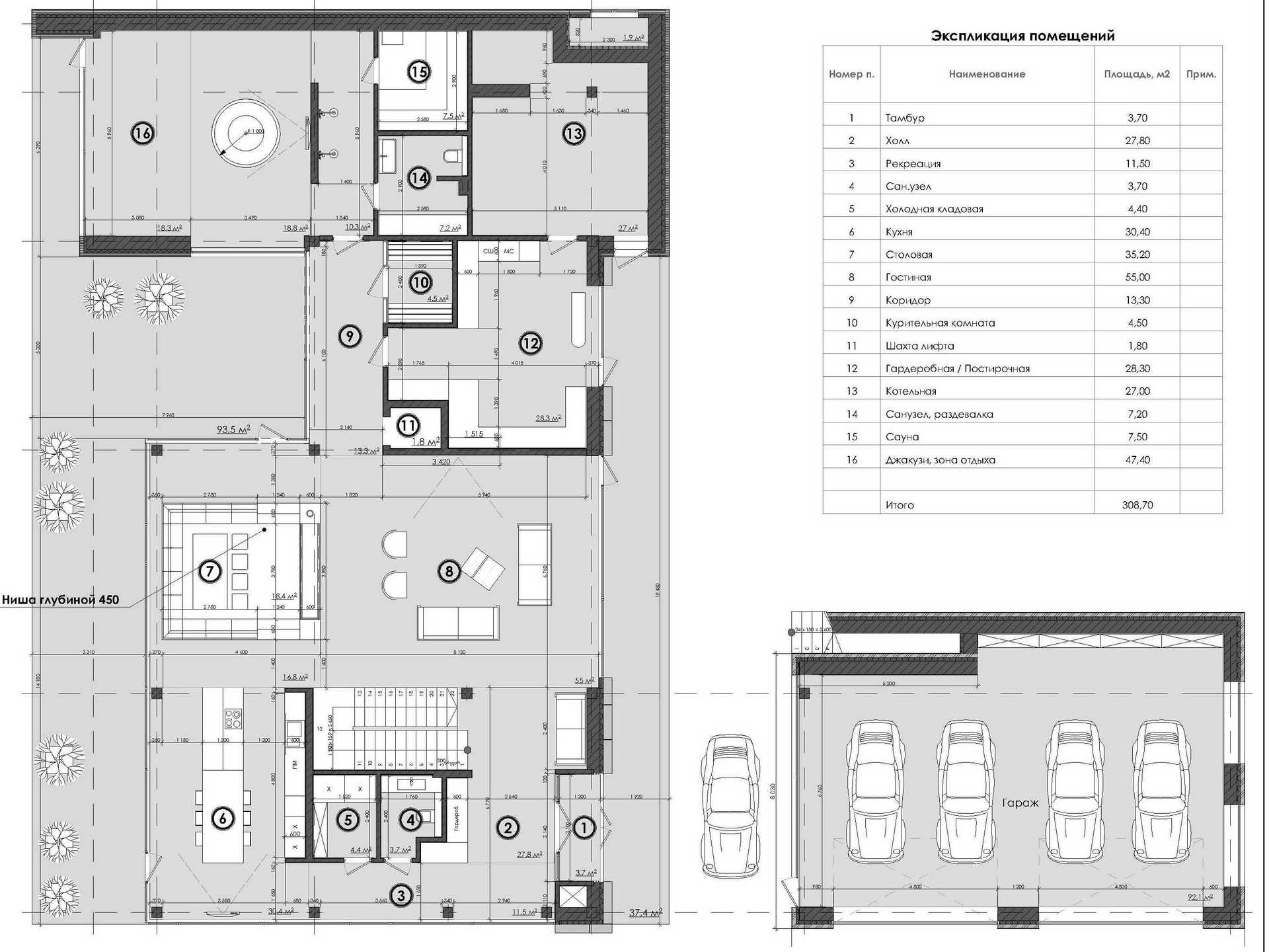
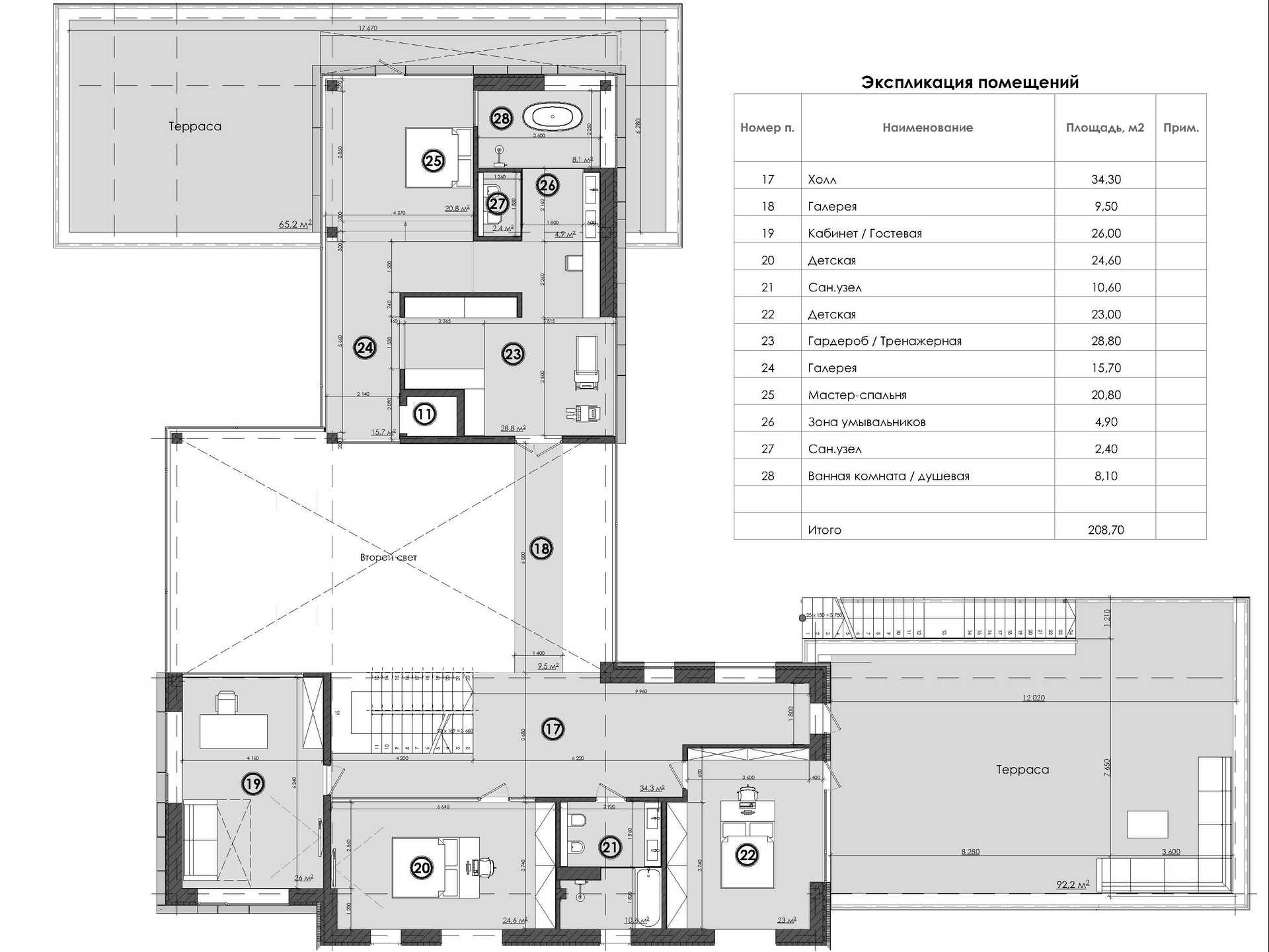
Проект №29-14-1
609 м²
Индивидуальный двухэтажный жилой дом с гаражом, террасой и сауной.
Техническое описание
| Площадь | 609 м² |
| Размеры | 35,41 × 26,82 м |
| Этажность | 2 |
| Высота 1 этажа | 3,3 м |
| Высота 2 этажа | 3,3 м |
| Фундамент | Монолитная фундаментная плита |
| Фасад | Вентилируемый навесной фасад: термообработанная древесина / алюминиевые композитные панели |
| Перекрытие | Монолитное железобетонное |
| Кровля | Плоская с организованным водостоком |





