ВЕРТИКАЛЬ
Проектно-строительная компания
Проекты
Компания
Услуги
Контакты
Проект №27-19
2 этажа / 131 м²
Индивидуальный жилой дом с крытой террасой
Назад
Вперед
Техническое описание
Площадь
131 м²
Размеры
9 × 8 м
Этажность
2
Фундамент
Свайный
Перекрытия
Сборные железобетонные плиты
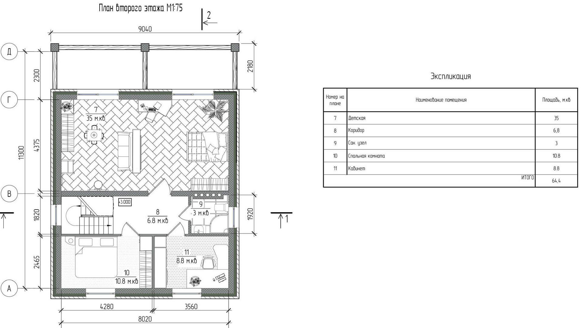
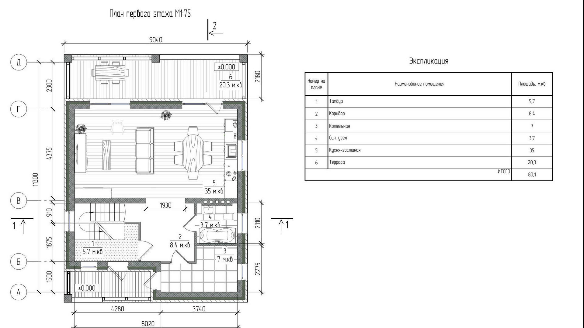
Планировка
Вертикаль
Проекты
Индивидуальное жилищное строительство
Проект №27-19