ВЕРТИКАЛЬ
Проектно-строительная компания
Проекты
Компания
Услуги
Контакты
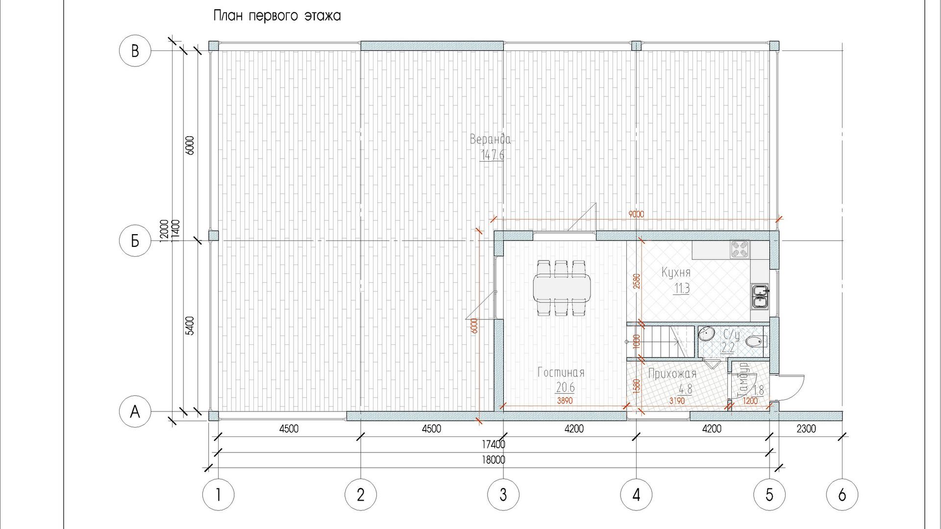
Проект №20-14
194 м²
Индивидуальный жилой дом с камином, террасой и открытой верандой.
Назад
Вперед
Техническое описание
Площадь
194,9 м²
Размеры
13,9 × 12 м
Этажность
2
Высота 1 этажа
3,3 м
Высота 2 этажа
3,3 м
Фундамент
Монолитная фундаментная плита
Фасад
Окрашенное дерево / искусственный камень
Перекрытия
Монолитное железобетонное
Кровля
Гибкая черепица по деревянным стропилам
Планировка
Вертикаль
Проекты
Индивидуальное жилищное строительство
Проект №20-14