Проект №16-14
706 м²
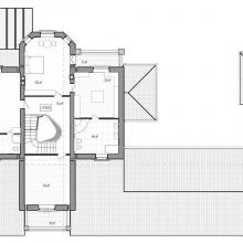
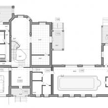
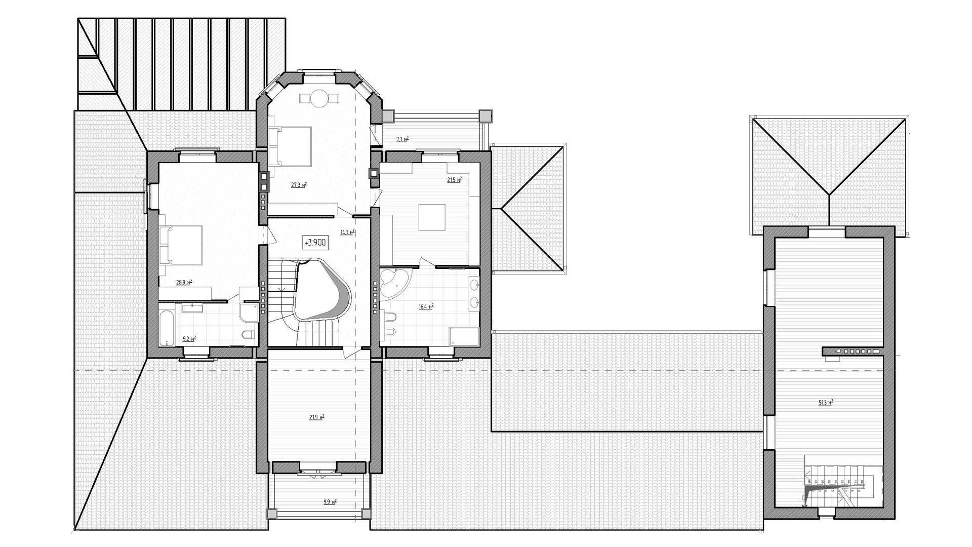
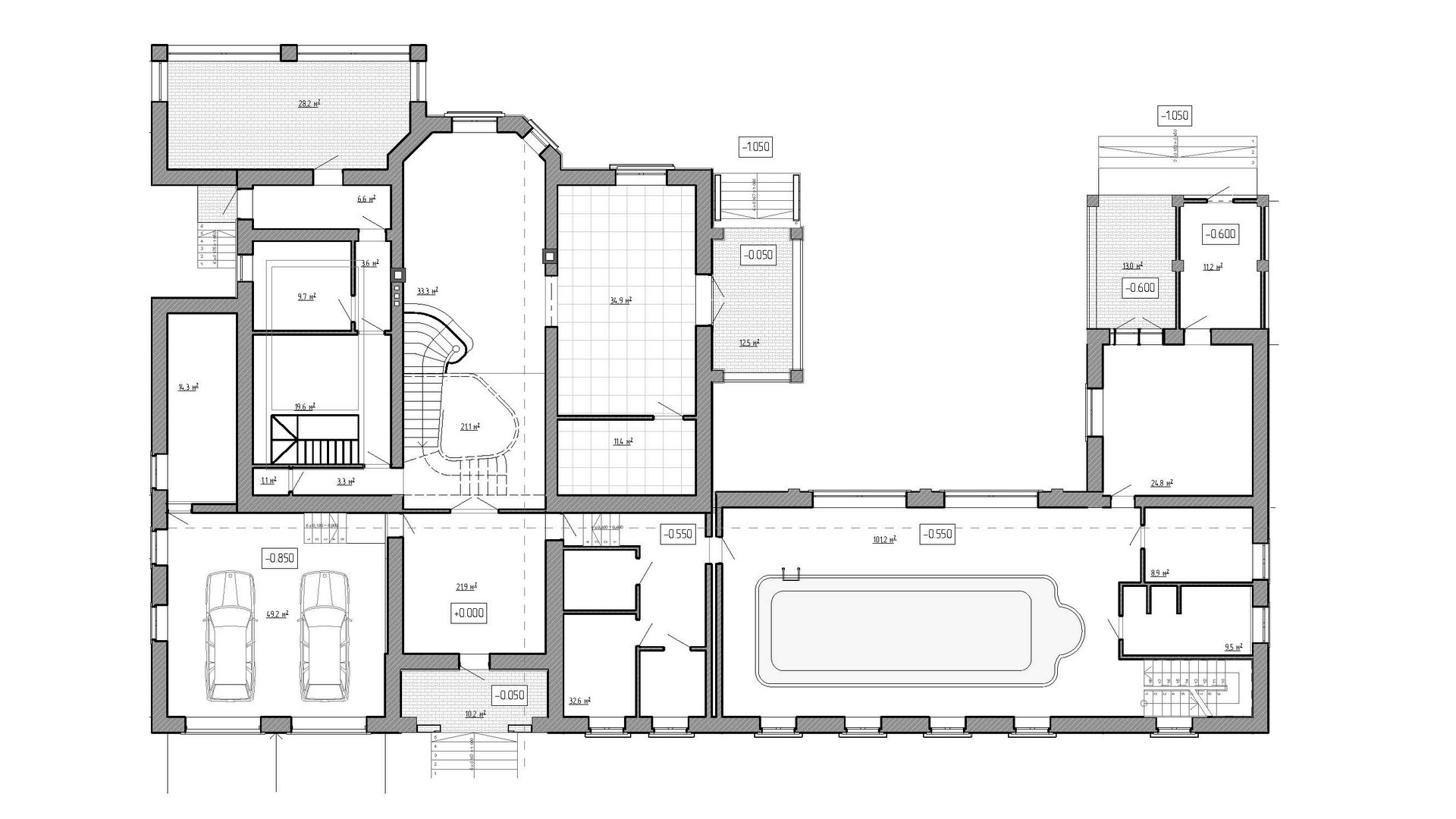
Индивидуальный жилой дом с зимнем садом, гаражом, баней и бассейном.
Техническое описание
| Площадь | 1140,9 м² |
| Размеры | 17,8 × 13,8 м |
| Этажность | 2 |
| Высота 1 этажа | 3,7 м |
| Высота 2 этажа | 2,9 м |
| Фундамент | Свайный с монолитным ростверком |
| Стены | 3-х слойный керамзитоблок и базальтовый утеплитель |
| Перекрытия | Монолитное железобетонное |
| Кровля | Натуральная черепица по деревянным стропилам |
| Фасад | Клинкерный кирпич |




