ВЕРТИКАЛЬ
Проектно-строительная компания
Проекты
Компания
Услуги
Контакты
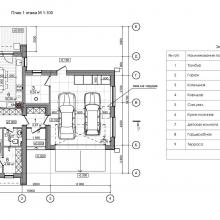
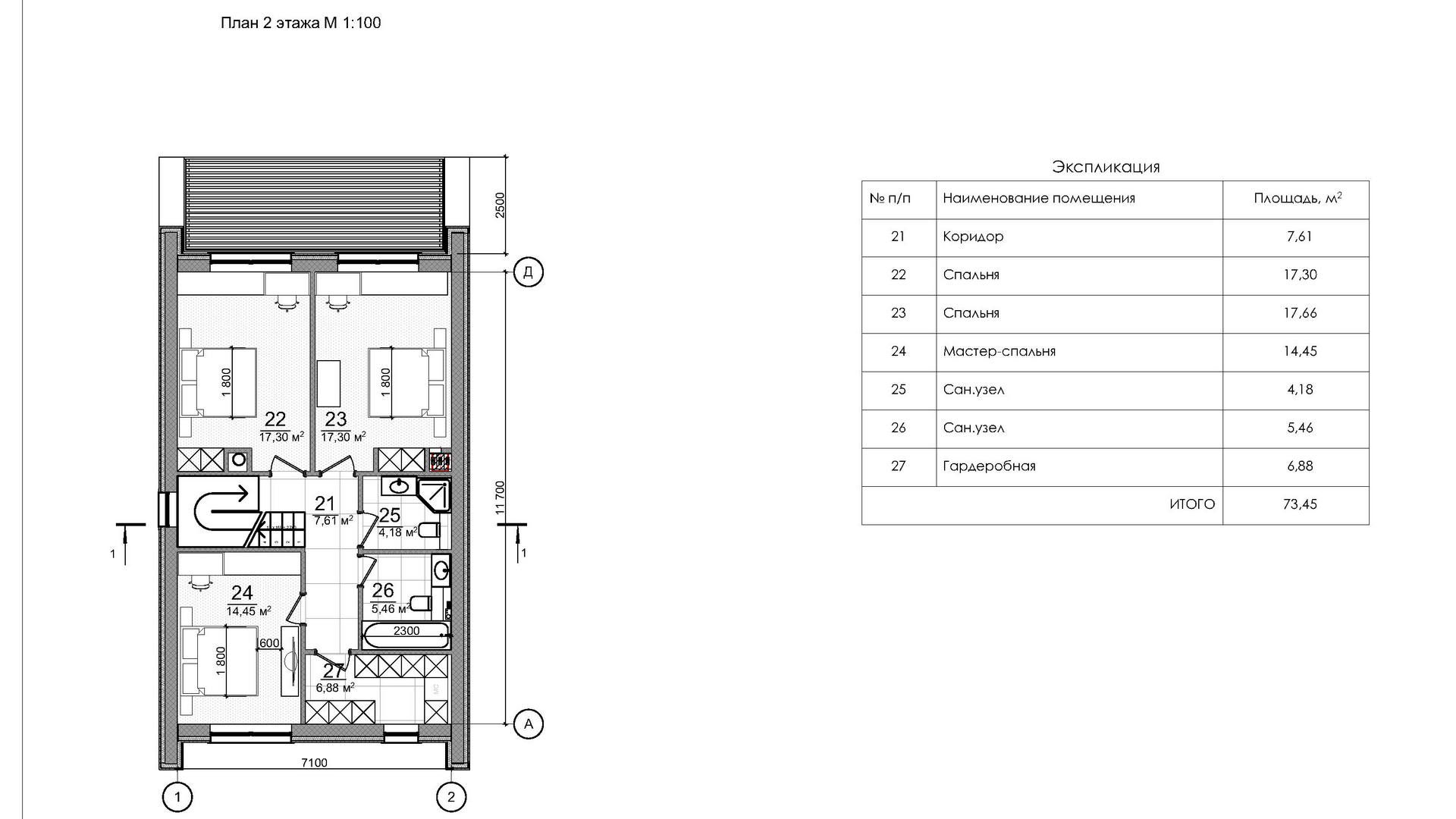
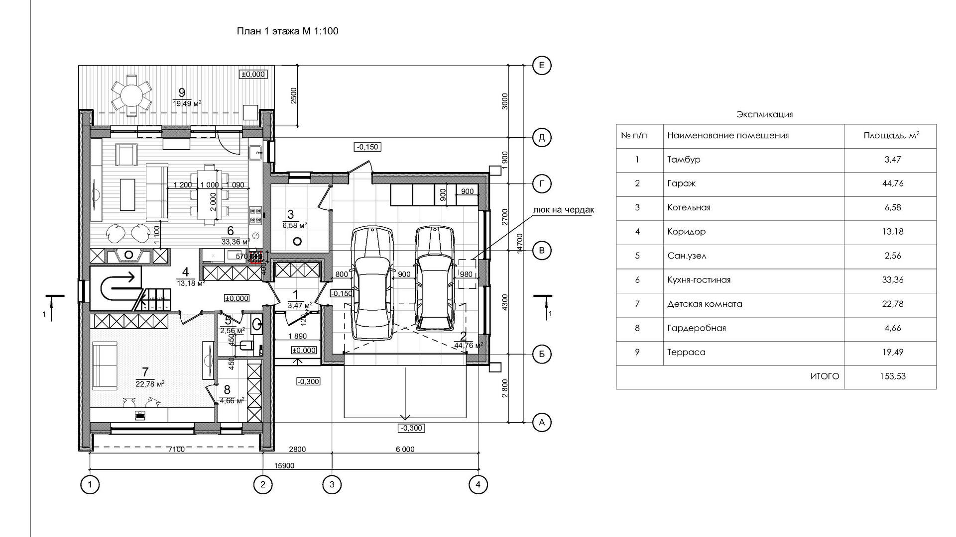
Проект №13-17
2 этаэжа / 227 м²
Индивидуальный жилой дом с камином и гаражом
Назад
Вперед
Техническое описание
Площадь
2
Размеры
16,95 × 14,13 м
Этажность
2
Высота 1 этажа
2,7 м
Высота 2 этажа
3 м
Фундамент
Монолитный плитный
Перекрытия
Монолитное железобетонное
Кровля
Профилированный лист по деревянным стропилам
Фасад
Облицовочный кирпич ручной формовки / профилированный лист
Планировка
Вертикаль
Проекты
Индивидуальное жилищное строительство
Проект №13-17