ВЕРТИКАЛЬ
Проектно-строительная компания
Проекты
Компания
Услуги
Контакты
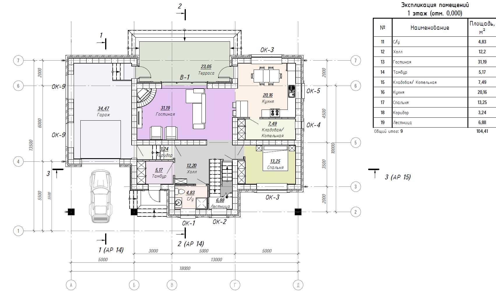
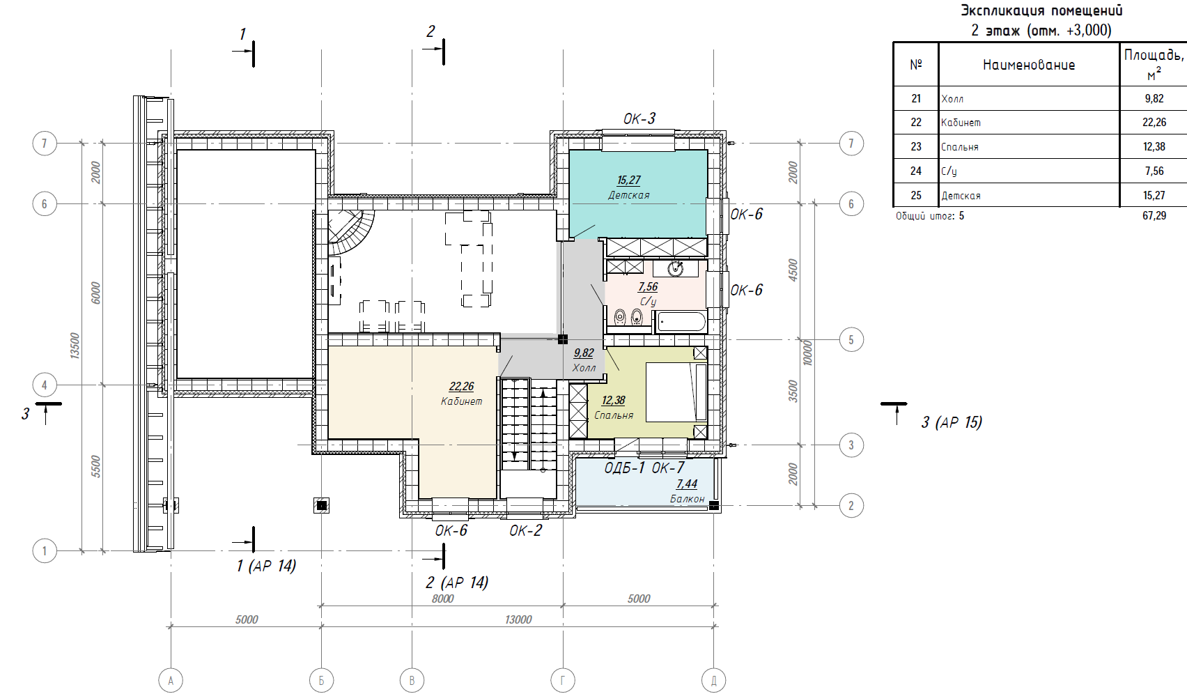
Проект №09-16
272 м²
Индивидуальный жилой дом площадью 272 м²
Назад
Вперед
Техническое описание
Площадь
272 м²
Размеры
18,79 × 12,97 м
Этажность
2
Высота 1 этажа
2,92 м
Высота 2 этажа
2,74 м
Планировка
Вертикаль
Проекты
Индивидуальное жилищное строительство
Проект №09-16