ВЕРТИКАЛЬ
Проектно-строительная компания
Проекты
Компания
Услуги
Контакты
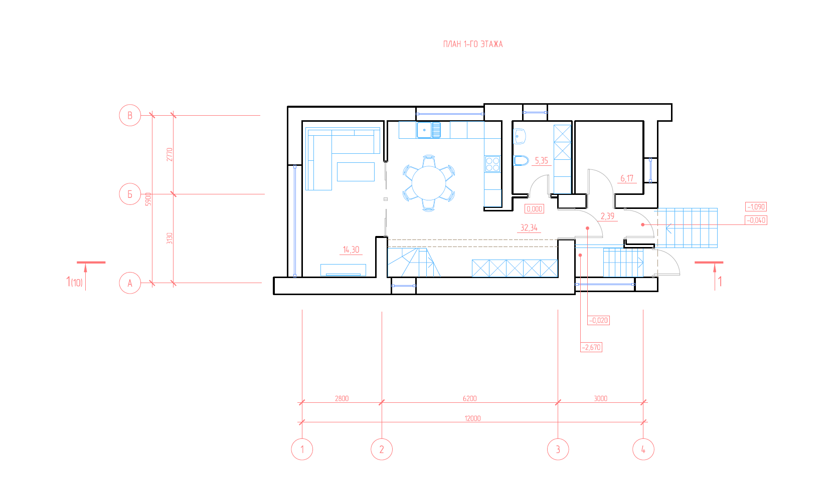
Проект №04-18
2 этажа / 184 м²
Индивидуальный двухэтажный жилой дом.
Назад
Вперед
Техническое описание
Площадь
184 м²
Размеры
12 × 5,5 м
Этажность
2 с подвалом
Фундамент
Железобетонная плита
Перекрытия
Сборные железобетонные плиты
Планировка
Вертикаль
Проекты
Индивидуальное жилищное строительство
Проект №04-18