Проект №03-13
1505 м²
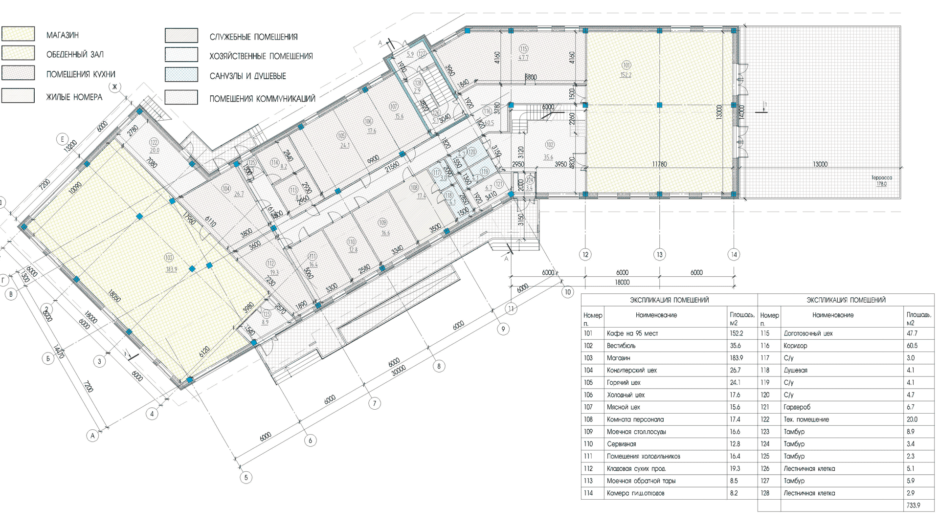
Двухэтажное здание для придорожного сервиса: кафе, гостиница, магазин.
Техническое описание
| Площадь | 1505 м² |
| Размеры | 68.33 (54.09) × 14.26 м |
| Этажность | 2 |
| Высота 1 этажа | 3,6 м |
| Высота 2 этажа | 2,85 м |
| Фундамент | Свайный с монолитным ростверком |
| Перекрытие | Монолитные железобетонные |
| Кровля | Гибкая черепица по деревянным стропилам и фермам |
| Фасад | Облицовочный кирпич / декоративная штукатурка |



