Проектирование ИЖС
В проект дома входят не только чертежи и красивые картинки. Это полноценный документ, регулирующий все детали здания.
Проект дома — это документация необходимая для строительства дома, выполненная в виде нескольких многостраничных альбомов-разделов. Большая часть информации, размещённая в проекте будет понятна только узким специалистам.
Именно в проектной документации находится полная информация о том, из чего и как будет построен ваш дом, что надо сделать что бы у вас всё было удобно, красиво и прочно: крыша не «бежала», стены не трескались и чтобы вас окружало тепло и комфорт.
Ознакомьтесь с видами проектов:

Архитектурный проект
В Архитектурном проекте есть информация про внешний вид дома, просчитана эргономика внутреннего пространства, описана архитектура вашего дома, размеры окон, материалы отделки фасада, примерное расположение мебели, а так же функциональное использование каждого уголка.

Архитектурно-строительный
В Архитектурно-строительном проекте отражены строительные детали объекта, подробно описаны материалы строительства, просчитаны необходимые конструкции, собраны объемы необходимых материалов.

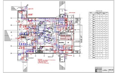
Инженерные системы
В Инженерных системах проработаны сети водоснабжения, канализации, отопления, вентиляции, электроснабжения и других необходимых для вас сетей (слаботочные, интернет, телевидение и т.д.). Данный проект может быть разработан как на часть сетей, так и на весь комплекс.
Нужен ли инженерный проект?
Если над разделом ИР можно еще подумать, нужен или не нужен (на наш взгляд экономить на нём, то же самое что экономить на пуговицах при покупке дорогого костюма из хорошей ткани), то разделы АР+АС для строительства нужны обязательно. Тут еще нужно заострить внимание на качестве проектной документации.
Расчёт стоимости
Помимо цены, есть такой немаловажный фактор, как опыт выполнения данных работ. Увы, для многих заказчиков, в данном вопросе единственный критерий при выборе проектировщика это стоимость работ «чем дешевле — тем лучше». Качественный интеллектуальный труд и сложные расчёты по проекту не могут стоить дешево. Убедиться в этом вы можете посмотрев проекты коттеджей, которые мы выполнили.
Плюсы проектирования
Заплатив деньги за проектную документацию вы получаете:
У вас будет наглядная визуализация дома, которую можно использовать и для эстетического удовольствия и для практического применения. Вы ТОЧНО знаете КАК будет выглядеть ВАШ дом и какой будет результат в конце. Вы знаете к чему стремитесь и как вы это будете делать. У вас полное понимание с чего начать, как продолжить и чем закончить строительство. Проект разработан именно для Вас и под Вас.
Вы получите гарантию, что конструкции не просто «красиво нарисованы», но и тщательно и профессионально просчитаны, все материалы подобраны именно для вашего дома.
На первый взгляд кажется, что стоимость проекта высока. В среднем проект дома на 250 квадратных метров обойдется в 150-200 тысяч рублей (раздел АР+АС), но на фоне предстоящих затрат на строительство и экономии от того что работы не придется переделывать это ничтожно мало.
Проектная документация позволит точно определить количество (объем) материала, а так же точность выбора его характеристик. Часто бывает, что люди тратят много времени в выборе материала, и где этого совсем не требуются выбирают «прочнее, толще, дороже», а вот там где действительно необходимо купить качественные материалы пытаются сэкономить (фундамент заливают низкосортным раствором от «дяди Васи», потом облицовывают дом дорогой плиткой, которая после того как фундамент лопается и начинает «плыть» приходит в негодность). Вы заблаговременно знаете, когда и где потребуется конкретный материал и можете просчитать логистику всех процессов. У вас ни возникнет вопросов, что делать с остатками строительного материала, т.к. вы приобрете именно то количество которое Вам потребуется и ни граммом/сантиметром больше. Вы всегда сможете экономить на доставке, закупая и заказывая доставку на весь объем целиком. Это выгодна, т.к. доставка материала «по чуть-чуть» может составить львиную часть накладных расходов, а где то даже стоить дороже довезенных материалов.
Согласно общей спецификации можно рассчитать стоимость затрат на материалы, а так же определить планируемый объем работ и затраты на их выполнение.
При наличие проекта, у вас будет понимание, что при кладки стенки, отверстие, которое остается в ней понадобится вам на следующий год для прокладки коммуникаций, и вам не придется платить сначала строителям за объем кладки этого отверстия, потом уже за демонтаж этого отверстия и потраченный зря материал. Очень часто на стройках сначала делают основные работы, а когда доходит дело до крепления к ним каких либо элементов, начинают думать: «Почему мы не предусмотрели тут закладную, и как же нам теперь закрепляться?». Приятно осознавать, что все отверстия и закладные уже предусмотрены (это экономит и время и деньги).
При наличие проекта, опытные строители, изучив его, максимально точно смогут определить сколько времени у них займет подготовка к работам и их выполнение. Не придется тратить время на исправление ошибок, закупу дополнительного материала и его ожидание.
Многие люди не могут виртуально представить дом и его эксплуатацию. 80% планировок в домах построенных без проекта, неудобны для проживания. Заплатить деньги, потратить время на стройку и жить в неудобном доме, планировку которого сделали «на коленке» - это досадно и обидно.
Наличие проекта, позволяет контролировать затраты. Вы точно знаете объем работ и материалов, а именно они влияют на цену готового дома. Также вы понимаете, понимаете, что материал тратится на ваш дом, а не выносится за его пределы.
Минусы
Теперь пара слов о минусах. Понятно, что то, что идет в плюсах при отсутствии проекта сразу же переходит в минус. Помимо вышеперечисленного сюда накладывается отсутствие гарантий на несущие элементы (крыша может просто упасть на вас, пол провалиться, стена покоситься) и правильной работы элементов, низкая ликвидность дома (кому нужна кривая и некрасивая постройка, если вдруг вы решите продать её?), а также головная боль и куча проблем, которые подрядчик будет перекладывать на вас. Дом построенный без участия архитектора, как правило, не отличаются архитектурной выразительностью и изяществом, а посему не вызывают восторг и удовлетворение у конечного потребителя.
Можно ли строить без проекта?
Конечно, если вы строите дом 30-60 квадратных метров, состоящий из четырех стен и двухскатной кровли то да, наверное тут не будет много проблем. Но если вы строите дом от сотни «квадратов» и выше и хотите, чтобы жизнь в нем была без забот, а дом вызывал улыбку на лице и радость в душе, то стоит задуматься. Ведь проектируете и строите вы один год, а жить будете долго. Выбор за Вами!